EELLAK is a platform for open standards, free software, open content, open data and open hardware in Greece. They collaborate with the National Technical University of Athens in open design projects.
Open Industrial Design Lab
Architecture / Spatial Design
2026
Project team: Roza Giannopoulou, Eva Bolou, Evangelia Fessa, Apostolos ZavrasLocation: Theoharis Building of the National Technical University, Athens, Greece
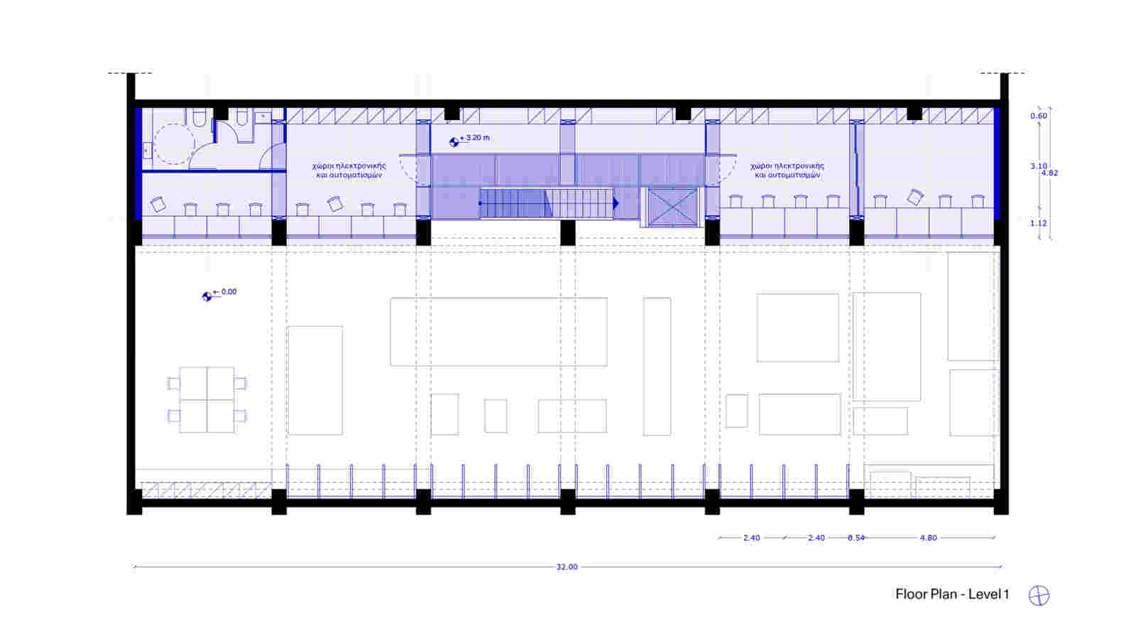
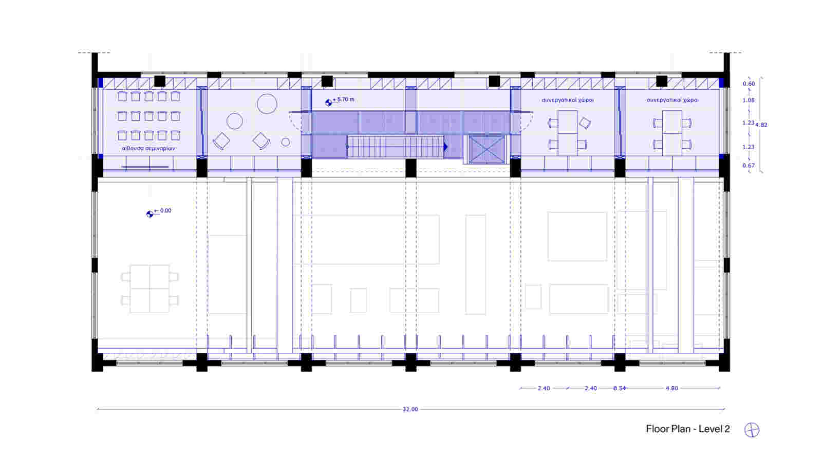
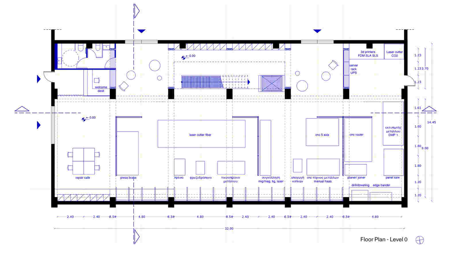
The project, a collaboration between EELLAK and National Technical University of Athens, inserts an open industrial design lab within an existing 11m-high building. Conceived as a flexible spatial toolbox for students, it supports fabrication, education, and collaboration.A lightweight, freestanding structure accommodates both heavy, noisy workshops and quiet, clean workspaces without altering the original shell, operating as a parasitic yet non-invasive system.Organized on a modular grid, the project forms an adaptable spatial framework, designed to be fabricated in-house using available machinery and techniques.







